Housing 200

 

by Michele Leonardi and Bruno Ambrosioni architects ©

with ex I.A.R. Progetti Engeneering-Rome

 

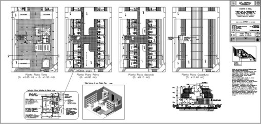
Near the Universitiy Campus of "Tor Vergata" and a metro station in Rome, 200 student accommodations with many services: cafeteria, dining hall, library, conference room, galleria with other services, gym, open air theater, parking. During the summer a resort for tourists (6 miles south of Coliseum). Preliminary design, definitive design, and working drawings (year 2006); unrealized complex.

The I.A.R. Progetti Group was composed by a team of architects, three structural engineers, two plant engineers, a bio-architect, two geotechnical engineers, and a botanist. This a small extract from the preliminary and intermediate projects :

 

 

 

 

 

 

 

 

 

 Extracts from the intermediate project :

sample drawing 1.pdf
Documento Adobe Acrobat [175.4 KB]
sample drawing 2.pdf
Documento Adobe Acrobat [208.1 KB]
sample drawing 3.pdf
Documento Adobe Acrobat [129.4 KB]

 

 

all rights reserved © Michele Leonardi architect and I.A.R. Progetti-Rome

T  H  E     M  A  R  I  N  D  U  C  T

THE MARINE WATER AQUEDUCT

 

D  E  E  P     B  L  U  E

SEAWATER  FOR  OVER  200,000 POOLS OF

L  O  S     A  N  G  E  L  E  S

 

 

 

 

 

 

 

D    U    N    E    S

THE MARINDUCT OASIS SYSTEM

 

T H E   P E N S I L E   P O O L S

BY BRIDGE-POOLS

WATERFUN & SPORTING BATHS

 

THE ROLLER COASTER OF STAIRS

A  LABYRINTH OF STAIRS

FOR SEAWATER FUN PARKS

 

 

 

F O R   H U M A N   B E I N G S

N O T   F O R   C L O N E S

 

 

 

S T A I R S   I N   T H E   W A T E R

A SEAWATER SPORTING & FUN PARK

 

T H E   N A U T I L U S

A VILLAGE IN THE DESERT

 

T H E   B L U E   S H E L L

A HOME WITH A THERMAL 

SHIELD OF SAND

 

 

 

 

 

 

 

 

 

 

 

 

 

 

T H E   Z E B R A S

CHAIRS & TABLES BY POLYCARBONATE

ALUMINIUM TUBES

 

 

 

 

 

 

 

 

 

 

 

 

 

 

ACKNOWLEDGMENTS

Even the longest journey begins with a first step! Systemic Habitats is on line since the 18th of May 2012. This website was created to publish online my ebook "Towards a different habitat" on the contemporary architecture and urbanism. Later many other contents were added. For their direct or indirect contribution to its realisation strarting from 2012, we would like to thank: Roberto Vacca, Marco Pizzuti, Fiorenzo and Raffaella Zampieri, Antonella Todeschini, All the Amici di Marco Todeschini, Ecaterina Bagrin, Stefania Ciocchetti, Marcello Leonardi, Joseph Davidovits, Frédéric Davidovits, Rossella Sinisi, Pasquale Cascella, Carlo Cesana, Filippo Schiavetti Arcangeli, Laura Pane, Antonio Montemiglio, Patrizia Piras, Bruno Nicola Rapisarda, Ruberto Ruberti, Marco Cicconcelli, Ezio Prato, Sveva Labriola, Rosario Francalanza, Giacinto Sabellotti, All the Amici di Gigi, Ruth and Ricky Meghiddo, Natalie Edwards, Rafael Schmitd, Nicola Romano, Sergio Bianchi, Cesare Rocchi, Henri Bertand, Philippe Salgarolo, Paolo Piva detto il Pivapao, Norbert Trenkle, Gaetano Giuseppe Magro, Carlo Blangiforti, Mario Ludovico, Riccardo Viola, Giulio Peruzzi, Ahmed Elgazzar, and last but not least Warren Teitz.  M.L.

 

 

 

 

 

 

 

 

 

 

 

 

 

         

 

 L ' I N G E G N E R

M A R C O   T O D E S C H I N I

c .   1 9 5 6 .

 

 

 

 Links to external cultural websites :

C I T Y   O F   K N O W L E D G E

 v i s i o n s   o f   l i f e

 

T H E  L A R G E   B A T H S

 a   s i g n   o f   l i f e   o n   t h e   e a r t h

 

f o r   h u m a n   b e i n g s

 

 

 

 

 

A   N E W   B O O K :

TOWARD A DIFFERENT HABITAT, Voll. 1 & 2

627 pages in king size, English text,

Lulu Press, Inc. Publisher, NC, U.S.A., 2024:

 

R e a d   i t   n o w  !

 

 

A   S E C O N D   N E W   B O O K :

DESIGNS FOR SYSTEMIC HABITATS

446 pages in king size, English text,

Lulu Press, Inc. Publisher, NC, U.S.A., 2024: